圆柱电芯液冷模组的电芯工作过程中产生的多余热量怎样才能快速散热呢、
圆柱电池模组内部,并联比较容易实现,只要一块母排将电芯的一极接入即可,但要做到电流密度分布均匀,热场均匀,则是考验工程师水平的地方。一般都尽量设计成较为对称的结构,但模组进出线位置附近总归与其他电芯均匀布置的位置不太一样,因此是设计仿真的关键点。像特斯拉那样,做出奇异形状的并联母排设计,应该是经过热量和电流分布测算之后的结果(特斯拉模组在文章后半部分里找)。
动力电池模组散热方式介绍
当前被探讨比较多的就是液冷和相变材料冷却。圆柱电芯液冷模组的典型就是特斯拉,在后面的实例中将做介绍。单纯的液冷系统是将导热良好的器件紧贴电芯放置,尽可能均匀且高效的将电芯工作过程中产生的多余热量带走。
液冷可以像特斯拉那样完全独立运行,也可以与其他冷却方式相结合。其中的一个重要形式就是与导热硅胶结合,如下图所示。导热硅胶可以获得比金属接触金属更加紧密的贴合,进而获得更好的传热性能。


电芯工作时产生的热量通过导热硅胶垫片传递至液冷管,由冷却液热胀冷缩自由循环流动将热量带走,使整个电池包的温度均衡统一,冷却液强大的比热容吸收电芯工作时产生的热量,使整个电池包在安全温度内运作。导热硅胶良好的绝缘性能和高回弹韧性,能有效避免电芯之间的震动摩擦破损问题,和电芯之间的短路隐患,是水冷方案的最佳辅助材料。
此液冷方案采用S型导热铝管、在铝管上贴附异型导热硅胶带(在导热硅胶带与电芯接触面增加凸起条纹),让电芯与导热管之间接触面更大,导热效果和减震效果更好。
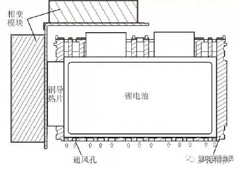
圆柱形电池的电池模组PCM散热结构,相变材料的应用,可以与液冷配合,也可以独立使用。独立应用则可以有多种排列方式。可以将PCM板材贴合在电池模组外部,辅助散热,如下图所示。据该实验结果显示,相变材料的存在也可以起到一定冷却作用。

效率最高的方式,自然是电芯与PCM接触面积最大的方式,范例如下。

相变材料用于热管理电池组,首先计算出所需PCM的质量,再根据电池的形状确定相变材料基体的几何尺寸,制作相变材料基体,并在基体上均匀挖出与单体电池尺寸相同的洞,洞的数量由电池模组中能够容纳的单体电池数量决定。
这个形式的相变材料的应用在客观上阻止了热失控单体能量的传播,被认为是一种比较理想的热管理形式。
动力电池应用场景对相变材料的基本要求:
相变温度低,需要适应锂电池的最佳工作温度区间15℃-35℃;
材料相变温度小范围内可以调节,不同类型电芯的最佳工作温度区间并不完全一致;
材料定型形态,相变前后,最好不要出现液态气态相;
材料潜热大,则系统恒温能力强;
传热系数要高,才能保持温度均匀;
材料绝缘性好,避免高压系统出现绝缘漏电风险。
相变材料质量密度低,减小对电池包能量密度的影响。













